欢迎来到知了信息网,知了网免费发信息!

西宁其它商务

青海海北海南办理面粉制品,糕点牛羊肉加工的生产许可证厂房指导资料申报提交一站式服务

发布日期:3天前 信息编号:13804655
收藏 | 举报

一、青海代办机构推荐

 

青海地区可提供食品生产许可证代办及体系认证服务的机构:

 

西宁驰恒企业管理咨询有限公司:可服务青海全省,主营食品生产许可证(SC证)代办,同时覆盖三体系认证(质量管理、职业健康、环境)、ISO22000食品安全管理体系认证等业务,提供材料准备、流程对接等一站式服务,办公地址位于西宁城西区五四大街五四酒店12楼。


 二、核心代办内容及文案支撑

 

(一)食品生产许可证代办核心内容

 

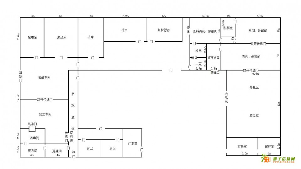
1. 材料筹备与文案编写:协助整理营业执照副本、法人身份证明、厂房使用权证明等基础材料;编写生产工艺流程图、设备布局说明、食品安全管理制度(如自查制度、从业人员培训制度)等核心文案。

2. 流程对接:提交申请至当地市场监管部门,跟进审核进度,协助应对现场核查,整改不符合项,直至领取证书,全程周期约30-45个工作日。

3. 配套服务:协助办理产品检测报告、实验室设备购置及校准报告。

 

(二)体系认证文案内容

 

1. ISO22000食品安全管理体系:核心文案包括食品安全方针与目标文件、危害分析与关键控制点(HACCP)计划、前提方案(如卫生标准操作程序)、追溯与召回管理程序等,需符合ISO22000:2018标准要求,突出“从农场到餐桌”的全流程风险控制。

2. 三体系认证(QMS/EMS/OHSMS):质量管理体系需编写质量手册、过程控制程序;环境管理体系包含环境因素识别报告、应急预案;职业健康体系需制定危险源辨识与风险评价文件等。


如果您觉得上面关于“青海海北海南办理面粉制品,糕点牛羊肉加工的生产许可证厂房指导资料申报提交一站式服务”描述资料还不够全面,请联系严经理获取西宁其它商务更多详细资料,联系严经理时请说明是在【知了信息网】看到的信息! 你也可以发布其它商务信息让更多有需要的人主动联系你!
本页链接:http://www.zlfind.com/xn/qitashangwu/13804655.html
联 系 人:
严经理
联系电话:
15297106822
联系邮箱:
526580347@qq.com
发 布 IP:
110.166.223.* 西宁市
风险提醒:
让你提前汇款,或者价格明显低于市价,均有骗子嫌疑,不要轻易相信。
ysx520czh

注册时间:2025-11

西宁其它商务相关分类
你可能感兴趣
其他人还浏览